Закрыть
Заявка отправлена.
В течение часа наш менеджер свяжется с Вами.
Получите бесплатную консультацию
Напишите любой вопрос, наш менеджер свяжется с Вами и ответит на него.
Имя*
Телефон*
Главная
Поиск
Избранное
Услуги
Еще
+7 (473) 2000-124
Закрыть
Заявка отправлена.
В течение часа наш менеджер свяжется с Вами.
Консультация
Напишите любой вопрос по этому объекту, наш менеджер свяжется с Вами и ответит на него.
Имя*
Телефон*
Закрыть
Заявка отправлена.
В течение часа наш менеджер свяжется с Вами.
Оставить заявку на одобрение ипотеки
Телефон*
Комментарий:

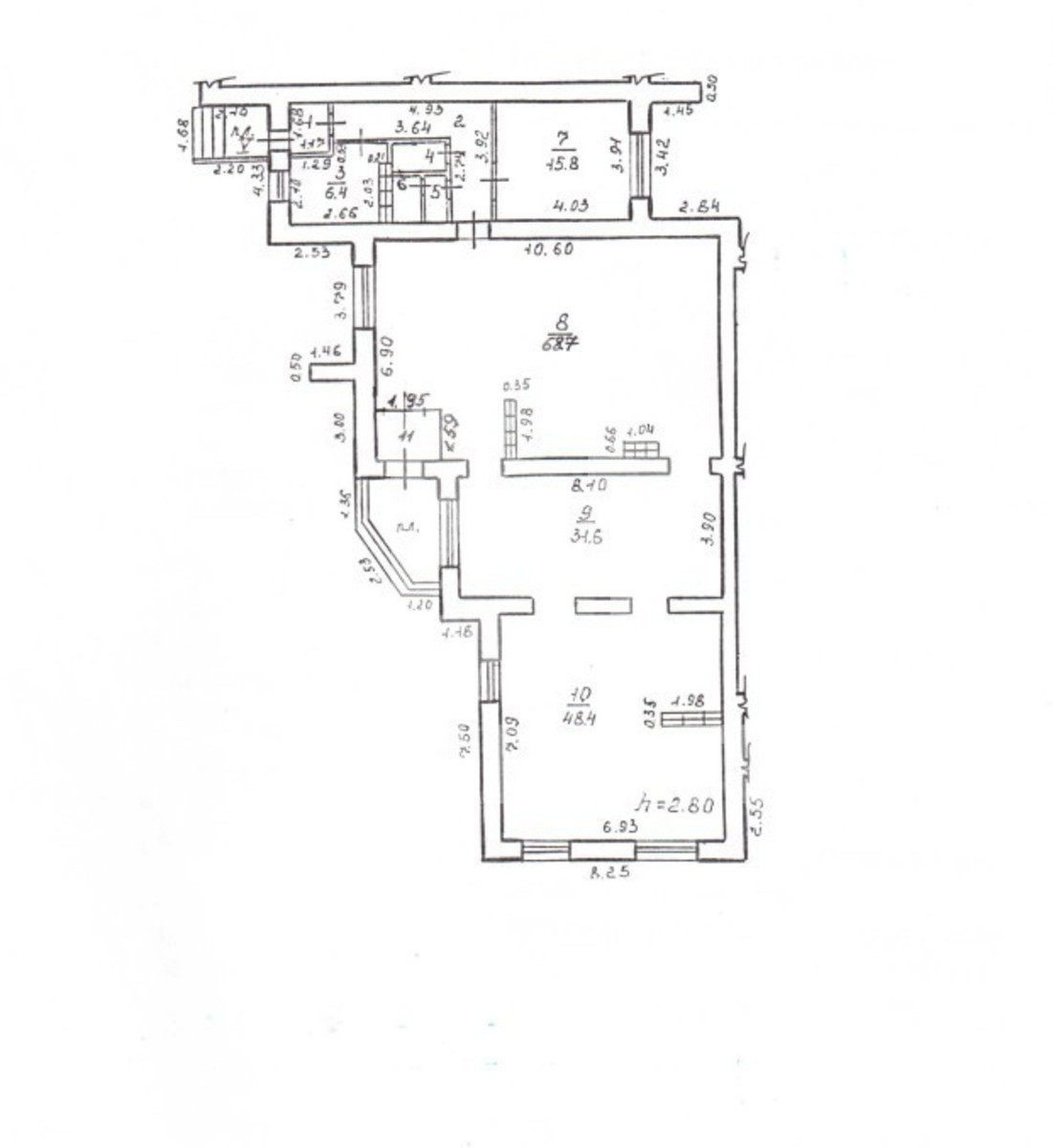
Помещение свободного назначения, 189м2

Воронежская область,Воронеж,Коминтерновский район,Московский проспект,44а
Посмотреть на карте
Добавить в избранное
Добавить заметку
Распечатать
133 000
Цена за м2: 701
Заинтересовал объект? Запишитесь на просмотр или консультацию специалиста:
Заместитель директора (Продает 110 объектов)
+7 (473) 2000-124
Консультация
Дата публикации: 07 июля 2025
Общая площадь 189 м2
Вид объекта Помещение свободного назначения
Этаж 1
Помещение свободного назначения, 189м2
133 000 руб
Данилова Ирина
Заместитель директора
+7 (473) 2000-124
Консультация

Описание объекта

Сдается коммерческое помещение в деловом центре города, прямо на углу (пересечение Московского проспекта и 45 Стрелковой Дивизии).

Характеристики:

  • Помещение находится на первом этаже многоэтажного дома.

  • Отдельная входная группа и запасной выход.

  • Функциональная планировка, позволяющая реализовать любые концепции. (3 open space и 2 кабинета)

  • Три кондиционера, два санузла.

  • Парковка наземная у входа

Условия

  • Арендная ставка в месяц 700 р/м2 133 000 т.р.
  • Коммунальные платежи оплачиваются отдельно.
  • Арендные каникулы возможно.

Инфраструктура:

    • Интенсивный пешеходный и автомобильный трафик.

      Местоположение обеспечивает стабильно высокий поток пешеходов - рядом Автовокзал, Управа Коминтерновского района, Памятник Славы, Клиники.

    • Остановка до 2-х мин ходьбы;

    • В пешей доступности: кафе, столовые, точки быстрого питания.

    Дополнительные условия:

      • Предоставление юридического адреса. Возможность подключения пожарной сигнализации и интернета через переоформление договоров.
      • Идеальный вариант для офиса любого назначения, обучающего центра, магазина, студии, оптики, аптеки.

    Ждем арендаторов, готовых к построению долгосрочных и взаимовыгодных отношений! Звоните чтобы записаться на просмотр!

    Оформление ипотеки
    у ведущих банков
    sberbank-3
    Сбербанк
    logo
    ВТБ
    rosselhozbank
    РоссельхозБанк
    Заявка отправлена.
    В течение часа наш менеджер свяжется с Вами.
    Рассматриваете ипотеку?
    Подберем наиболее выгодные условия у ведущих банков
    Телефон*
    Комментарий: