Закрыть
Заявка отправлена.
В течение часа наш менеджер свяжется с Вами.
Получите бесплатную консультацию
Напишите любой вопрос, наш менеджер свяжется с Вами и ответит на него.
Имя*
Телефон*
Главная
Поиск
Избранное
Услуги
Еще
+7 (473) 2000-124
Закрыть
Заявка отправлена.
В течение часа наш менеджер свяжется с Вами.
Консультация
Напишите любой вопрос по этому объекту, наш менеджер свяжется с Вами и ответит на него.
Имя*
Телефон*
Закрыть
Заявка отправлена.
В течение часа наш менеджер свяжется с Вами.
Оставить заявку на одобрение ипотеки
Телефон*
Комментарий:

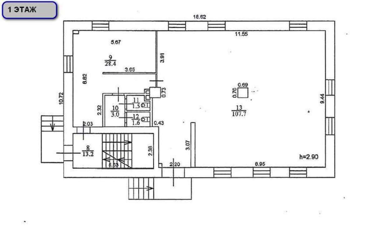
Офисное помещение, 155м2

Россия, Воронеж, проспект Революции, 46
Посмотреть на карте
Добавить в избранное
Добавить заметку
Распечатать
217 560
Цена за м2: 1 400
Заинтересовал объект? Запишитесь на просмотр или консультацию специалиста:
Данилова Ирина - 27 отзывов
Заместитель директора (Продает 7 объектов)
+7 (473) 2000-124
Консультация
Дата публикации: 17 апреля 2026
Общая площадь 155 м2
Вид объекта Офисное помещение
Этаж 1
Офисное помещение, 155м2
217 560 руб
Данилова Ирина
Заместитель директора
+7 (473) 2000-124
Консультация

Описание объекта

Код объекта: 2097824.

Предложение для серьезного бизнеса: аренда части отдельно стоящего здания с собственной парковкой в центре Воронежа.

Первый этаж.
Отдельный вход. Здание новое, отделка 100%. Новые коммуникации. Парковка закрытая (10 -12 машин), заезд удобный. Высокий рекламный потенциал.
Характеристики: - Отдельная входная группа,
- Площадка перед помещением,
- Закрытая территория (ворота с фасада и двора),
- Функциональная планировка, позволяющая реализовать любые концепции
- открытое помещение, выделенный кабинет, санузел,
- Отличные рекламные поверхности,

Идеальный вариант для офиса любого назначения, центра оказания медицинских услуг, обучающего учреждения.

Целевая аудитория - экономически активное население, обладающее средним и высоким платёжеспособным спросом.
Дополнительная информация по телефону. Ответим на все интересующие Вас вопросы. Звоните!

Оформление ипотеки
у ведущих банков
sberbank-3
Сбербанк
logo
ВТБ
rosselhozbank
РоссельхозБанк
Заявка отправлена.
В течение часа наш менеджер свяжется с Вами.
Рассматриваете ипотеку?
Подберем наиболее выгодные условия у ведущих банков
Телефон*
Комментарий: