Закрыть
Заявка отправлена.
В течение часа наш менеджер свяжется с Вами.
Получите бесплатную консультацию
Напишите любой вопрос, наш менеджер свяжется с Вами и ответит на него.
Имя*
Телефон*
Главная
Поиск
Избранное
Услуги
Еще
+7 (473) 2000-124
Закрыть
Заявка отправлена.
В течение часа наш менеджер свяжется с Вами.
Консультация
Напишите любой вопрос по этому объекту, наш менеджер свяжется с Вами и ответит на него.
Имя*
Телефон*
Закрыть
Заявка отправлена.
В течение часа наш менеджер свяжется с Вами.
Оставить заявку на одобрение ипотеки
Телефон*
Комментарий:

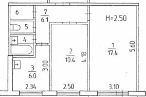
2-к квартира, 45м2, 2/9 эт.

Воронежская область,Воронеж,Коминтерновский район,Хользунова улица,84
Посмотреть на карте
Добавить в избранное
Добавить заметку
Распечатать
3 900 000
Цена за м2: 86 667
Заинтересовал объект? Запишитесь на просмотр или консультацию специалиста:
Call-центр
Отдел продаж
+7 (473) 2000-124
Консультация
Дата публикации: 20 марта 2026
Кол-во комнат 2
Этаж 2
Этажность дома 9
Общая площадь 45 м2
Жилая площадь 28 м2
Площадь кухни 7 м2
Материал дома Панельный
Вид объекта Вторичка
2-к квартира, 45м2, 2/9 эт.
3 900 000 руб
Call-центр
Отдел продаж квартир в новостройках
+7 (473) 2000-124
Консультация

Описание объекта

Продам двухкомнатную квартиру в удобном месте Северного района.

Если не получилось дозвониться, пишите, постараюсь Вам оперативно ответить.

В квартире: гостиная - 17,5 кв.м., спальня - 10,5 кв.м., кухня - 6 кв.м., раздельный санузел, застекленный балкон.

Во дворе - современная детская площадка, места для отдых взрослых и детей, достаточное количество парковочных мест.

Квартира находится в районе с развитой инфраструктурой.

В непосредственной близости - остановка Подгоренская улица, детский сад №153, школа №87, супермаркеты Пятерочка, Чижик, детская поликлиника №11. В шаговой доступности - поликлиника №4, парк Победы, ТРЦ Арена.

Документы - в идеальном состоянии.

Без ограничений и обременений.

Подходит под ипотеку, материнский капитал и жилищные сертификаты.

Квартира освобождена. Быстрый выход на сделку.

Один собственник. Полная стоимость в договоре.

Звоните! Ждем Вас на просмотр!

Оформление ипотеки
у ведущих банков
sberbank-3
Сбербанк
logo
ВТБ
rosselhozbank
РоссельхозБанк
Заявка отправлена.
В течение часа наш менеджер свяжется с Вами.
Рассматриваете ипотеку?
Подберем наиболее выгодные условия у ведущих банков
Телефон*
Комментарий: